Dans un environnement privilégié, au calme d’une impasse, future maison neuve vendue en VEFA, bénéficiant d’une vue dégagée et arborée et d’une exposition sud / sud-ouest, idéale pour une belle luminosité tout au long de la journée.
La maison se compose au rez-de-chaussée d’une entrée, d’une spacieuse pièce de vie d’environ 40 m², d’une chambre avec salle d’eau privative, d’un WC séparé et d’un garage attenant.
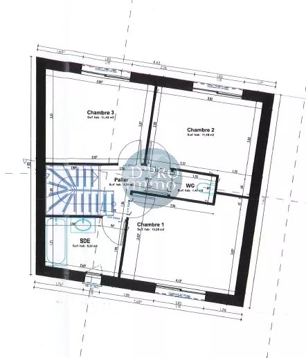
À l’étage, un palier dessert trois chambres, une salle de bain ainsi qu’un second WC indépendant.
Le projet est situé dans un quartier résidentiel recherché, à proximité immédiate du Pont du Sens et du rond point de Rennes, avec tous les commerces accessibles à pied. Les lignes de bus C2 et C20 se trouvent à environ 500 mètres, facilitant les déplacements.
Bien rare sur le secteur, offrant confort moderne, cadre verdoyant et accessibilité, idéal pour une famille ou un projet de résidence principale.
Type de bien : maison/villa
Surface habitable (m2) : 106.84
Surface terrain (m2) : 310
Nombre de chambres : 4
Diagnostic de performance énergétique
80
KWh/m².an
8*
kg CO2/m².an
Logement économe
A
B
C
D
E
F
G
Logement énergivore
DPE viergeConsommations non exploitables
Non soumis au diagnostic
* Dont émissions de gaz à effet de serre
Faible émission de GES
A
B
C
D
E
F
G
Forte émission de GES
8
KgéqCO2 / m².an
GES viergeConsommations non exploitables
Informations complémentaires:
Numéro de mandat : 1013
* Prix hors honoraires acquéreur : 410 000 €
* Honoraires : 4.00% TTC
* Les honoraires seront intégralement à la charge de l'acquéreur.